東良舍君公寓酒店裝修工程
項目名稱 | 東良舍君公寓酒店裝修工程 | 行業屬性 | 酒店/餐飲/會所 |
項目地址 | 北京朝陽區柳芳北里甲12號 | 項目造價 | 1100.0萬 |
主關鍵詞 |

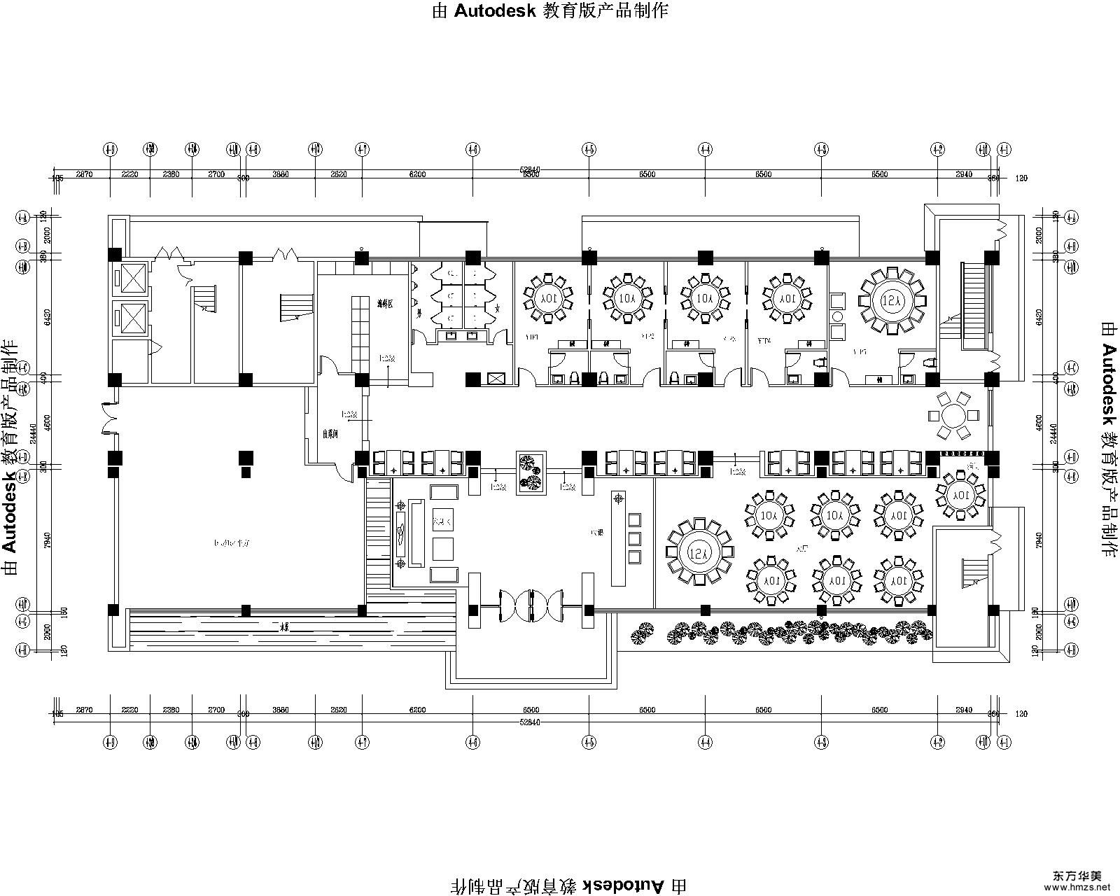
▄原建筑結構分析: 東良舍君公寓式酒店,是一家專業做公寓出租的運營商,此處項目為整體出租,集文藝青年,情侶,做主要消費群體。設計有現代感,符合年輕群體、自由發揮,延續時尚。

▄設計需求: 酒店裝修設計之室內設計首先要有一個整體的構思.要確定目標顧客。不同的生活背景和生活環境使人的性格、愛好有很大的差異,而不同的職業、年齡和民族也促成了每個人不同的個性形成。個性的差異會導致人與人之間的審美理念、行為習慣的不同。
▄設計風格定位: 本案占據路口一個獨棟樓房,位置優越,招人醒目,外立面設計顏色區分,簡單實用。露臺及洗衣房是休閑聚集交流之地,符合年輕人生活理念,室內設計簡單實用,顏色搭配鮮艷亮麗,生活功能完全滿足,為入住者打造一個舒適的生活空間。