莫泰酒店裝修工程
項目名稱 | 莫泰酒店裝修工程 | 行業屬性 | 酒店/餐飲/會所 |
項目地址 | 新街口虎踞南路65號水西門江蘇鞋城斜對面 | 項目造價 | 80.0萬 |
主關鍵詞 |

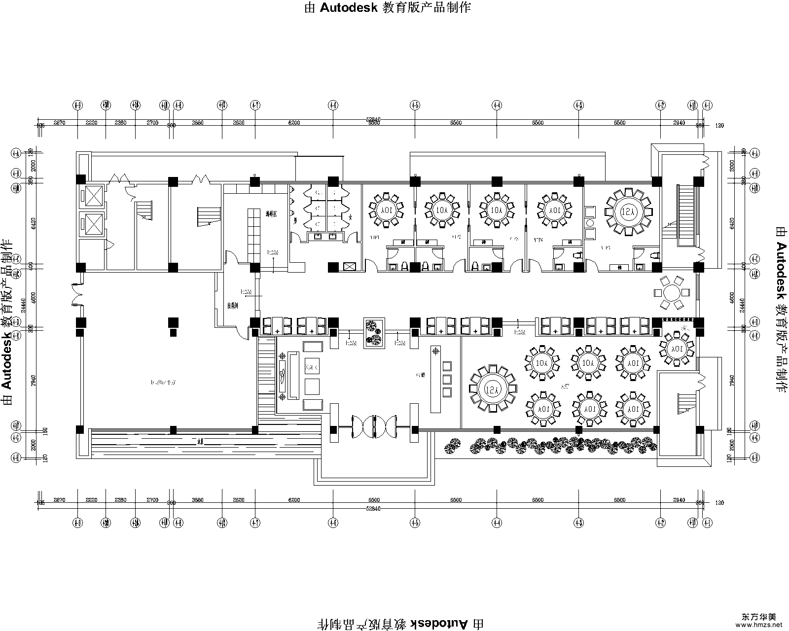
▄原建筑結構分析: 根據項目原先的結構進行改造

▄設計需求: 本項目屬于二次裝修改造工程,拆除、 石膏板隔墻、石膏板吊頂,電路改造、水路改造。根據項目原先的結構,進行改造,空間結構基本不變。
▄設計風格定位: 由于之前裝修顏色過重太過沉悶,改造目的讓整個空間布局更合理,色調更柔和,對比更強。因此大廳位置保留原地面深顏色的地磚,通過簡單的吧臺直線造型和用材,過度和緩和下深色地磚帶來的壓迫感,直至墻面用暖色壁紙和冷暖光的搭配,來烘托整個空間的氛圍。