綠茵閣餐廳裝修工程
項目名稱 | 綠茵閣餐廳裝修工程 | 行業屬性 | 酒店/餐飲/會所 |
項目地址 | 南京市白下區漢中路143號環亞廣場2樓12鋪(上海路口) | 項目造價 | 68.8萬 |
主關鍵詞 |

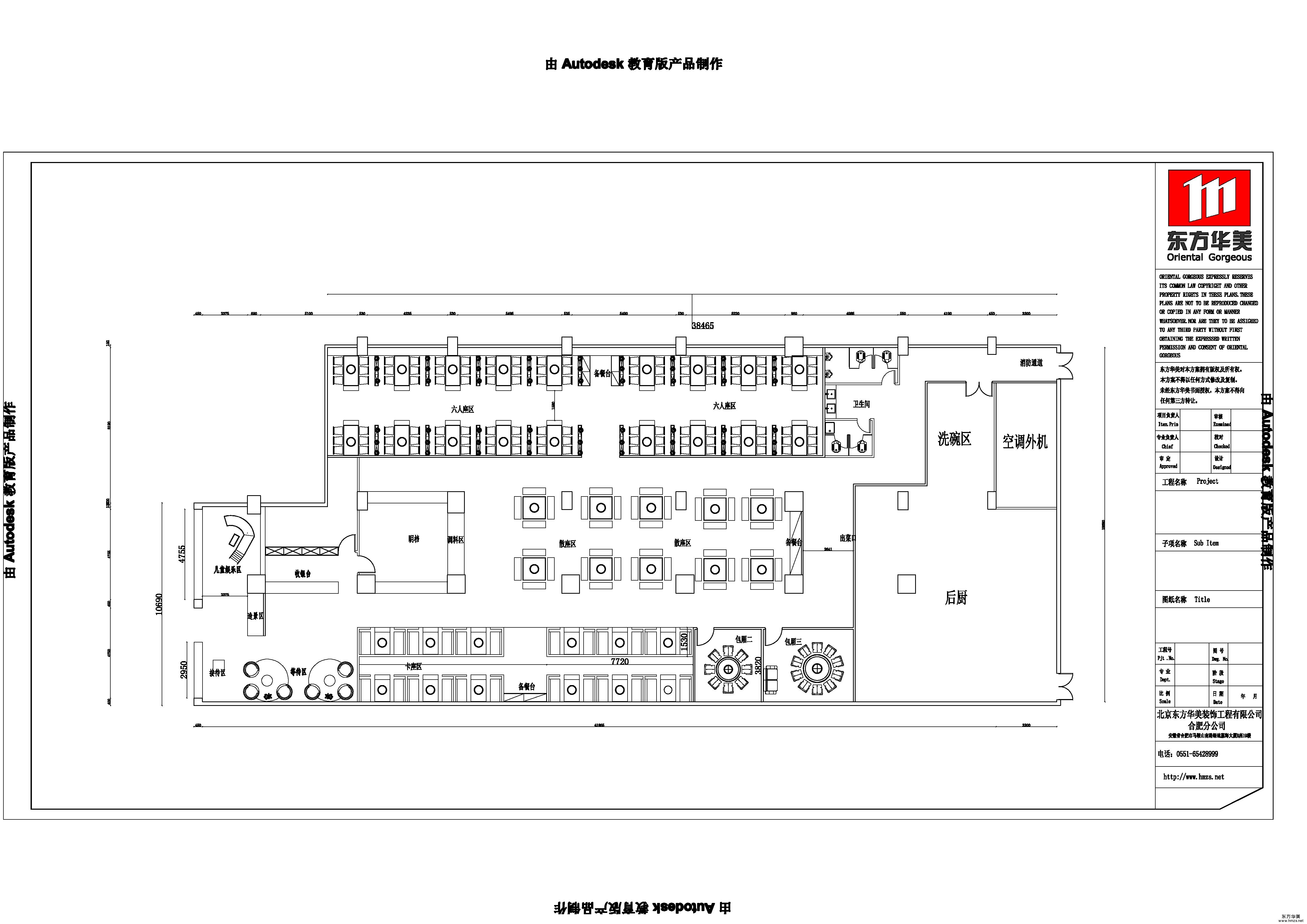
▄原建筑結構分析: 本方案裝修設計上做到了細致入微,該餐廳的平面布置以入口出為中心將整個餐廳左右分隔開來,這樣可以更好的安排顧客和餐廳人流導向,散座區的餐桌合理布局以致合理疏通人流量。設計師利用聲、形、色等技巧,充分展現整體設計意圖,最大限度吸引客人來店或入店,輔以各種待客技巧,實現客人消費。除此以外,在裝飾拍配和風格上也是煞費苦心,運用了許多現代裝飾的表現特點區烘托環境氛圍。

▄設計需求: 該餐廳的平面布置以出入口為中心將整個餐廳左右分隔開來,這樣可以更好的安排顧客和餐廳的人流導向,散座區的餐桌在設計時的合理布局下以致合理疏通人流量。水吧區的照明和軟式搭配跨度比較大
▄設計風格定位: 將時尚感和復古的氣質相結合,使得整個餐廳既高雅又不失時代感。