美高梅廣場餐飲裝修工程
項目名稱 | 美高梅廣場餐飲裝修工程 | 行業屬性 | 酒店/餐飲/會所 |
項目地址 | 長沙市望城區太陽山路與湯加湖路交匯處東北角萬業·巴厘島 | 項目造價 | 45.6萬 |
主關鍵詞 |

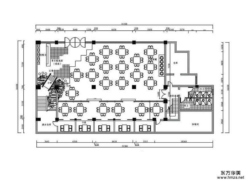
▄原建筑結構分析: 采用歇山頂、深挑檐、架空地板、室外平臺、橫向木板壁外墻,檜樹皮葺屋頂等,外觀輕快灑脫。講究空間的流動與分隔,流動則為一室,分隔則分幾個功能空間,空間中總能讓人靜靜地思考,禪意無窮。

▄設計需求: 日式料理餐廳,要體現日式傳統文化體現,其清新自然、簡潔淡雅的獨特品味,形成了獨特的家具風格,對于活在都市森林中的食客來說,日式餐廳環境所營造的閑適寫意、悠然自得的生活境界,也許就是設計要所追求的。
▄設計風格定位: 這是家日式風格的料理餐廳,我們在裝修設計中無處不體現日式風格的元素,橫向木板壁外墻、墻上裝飾所用的穿和服的仕女、傳統的紙扇和雨傘等等,我們都用到了。不推崇豪華奢侈、金碧輝煌,以淡雅節制、深邃禪意為境界,重視實際功能。