中欣國際辦公裝修工程
項目名稱 | 中欣國際辦公裝修工程 | 行業屬性 | 金融/國企/事業機構 |
項目地址 | 長沙市天心區劉家沖路和友誼路交匯處 | 項目造價 | 69.4萬 |
主關鍵詞 |

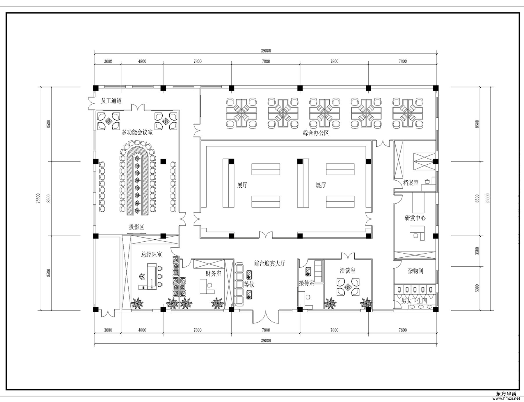
▄原建筑結構分析: 燈具的選擇,燈光的設計,和辦公家具的選擇,以及飾品,掛畫,花藝的搭配都是裝修的重點,我們立志打造有品位的、人性化的辦公空間。

▄設計需求: 體現公司的企業精神。使辦公空間可以獨具魅力,獨具特色,在功能之上具有設計感和藝術感。打造全新人才,人性辦公環境,平衡在效果,效益,效率之間恰到好處把握一種和諧平衡。
▄設計風格定位: 以白色、冷灰色和棕色為主色調,利用文化磚、原木桌椅和畫作打造有品位的現代簡約的辦公空間。示公司的大氣、厚重、現代、獨特、和諧、平衡的可持續發展的內部辦公空間,展示企業新形象,提高企業的品牌定位。