新天地大廈辦公裝修工程
項目名稱 | 新天地大廈辦公裝修工程 | 行業屬性 | 金融/國企/事業機構 |
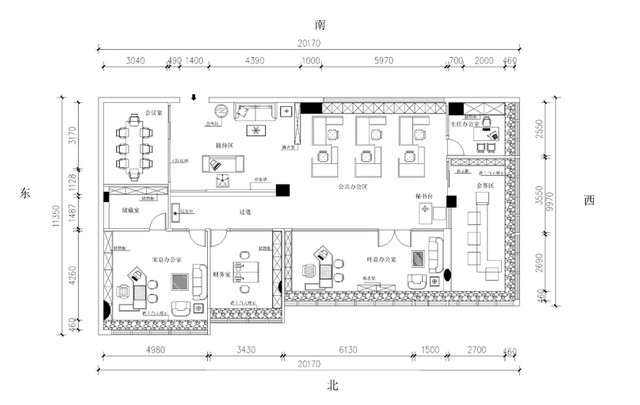
項目地址 | 長沙市岳麓區金星中路319號 | 項目造價 | 52.80萬 |
主關鍵詞 |

▄原建筑結構分析: 以銀灰色磚裝飾墻面,營造輕松自然的氛圍。木質的長條形辦公桌給人放松的感覺,不拘束于空間和格局,讓人更加具有靈感;淺色木質桌椅打造辦公環境,清新自然的感覺讓人身心舒適,可以在這樣的環境里更好的辦公。

▄設計需求: 以LOFT風格進行辦公室裝修設計,非常的工業簡潔,在于客戶的設計交流下客戶希望把他們的辦公室打造成非常個性以及舒適的辦公環境,從前廳到辦公空間整個環境都給與一眾脫離傳統辦公的整體氛圍。 以寧缺勿濫為精髓,合理的簡化居室,從簡單舒適中體現企業文化的精致。
▄設計風格定位: 本案采用了現代簡約型的風格,淺色簡單的色彩和材質,簡潔的裝飾線條有的柔美雅致,有的遒勁而富于節奏感,整個立體形式都與有條不紊的、有節奏的曲線融為一體。年輕人更喜歡的一個安靜,祥和,看上去明朗寬敞舒適的辦公環境,所以消除傳統的嚴肅辦公環境,可能不用裝飾和取消多余的東西,沒有實用價值的特殊部件及任何裝飾都會增加建筑造價,強調形式應更多地服務于功能。